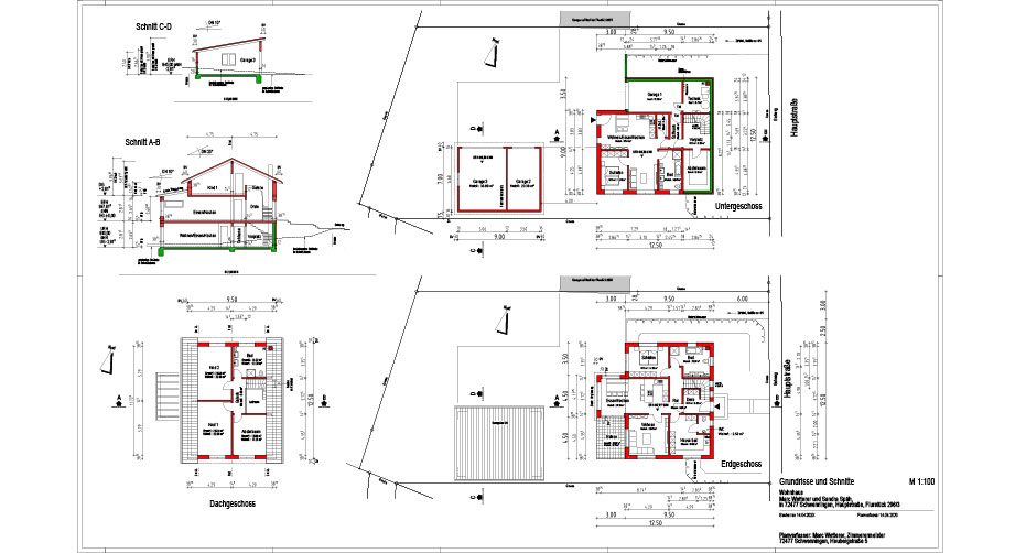
Planung
Zimmerei WM-Holzbau in Schwenningen bietet Ihnen professionelle Planung für komplette Objekte und Häuser. Wir erstellen Bauanträge für Genehmigungen, kümmern uns um die Arbeitsvorbereitung und erstellen präzise Werk- und Abbundpläne sowie Massenermittlungen mit modernster CAD-Software für exakte Ergebnisse.
Planung & Genehmigung – Alles aus einer Hand
Bei uns erhalten Sie mehr als nur solides Handwerk – wir bieten Ihnen eine professionelle, durchdachte Planung für komplette Objekte und Häuser.
Ob Neubau, Anbau oder Sanierung – wir begleiten Sie von der ersten Idee bis zur fertigen Umsetzung. Ein zentraler Bestandteil dabei: Die detaillierte Planung Ihres Bauvorhabens.
Wir übernehmen für Sie:
- die komplette Bauplanung Ihres Holzhauses oder Projekts
- die Erstellung der Bauanträge inklusive aller notwendigen Unterlagen für die Baugenehmigung
- die Arbeitsvorbereitung zur reibungslosen und effizienten Umsetzung auf der Baustelle
- präzise Werk- und Abbundpläne
- exakte Massenermittlungen mit modernster CAD-Software
Dank unserer digitalen Planungsprozesse erzielen wir höchste Genauigkeit, sparen Zeit und sorgen dafür, dass auf der Baustelle alles reibungslos abläuft. So haben Sie die Sicherheit, dass Ihr Projekt von Anfang an auf einem soliden Fundament steht – technisch, gestalterisch und behördlich.











Sie Haben Fragen?
Zu mir oder unseren Leistungen?
Dann Kontaktieren sie uns Jetzt.
